Imagens Renderizadas da Fachada Frontal
Esse item é essencial para a visualização mais realista de como ficará a fachada frontal. Renderizamos cenas noturnas e diurnas da fachada frontal.
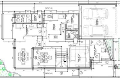
Planta Humanizada
Esta planta apresenta a casa de forma artística, possibilitando a visualização dos móveis e vegetação.



















